Jurajskie Centrum Edukacji Przyrodniczej EkoMałopolska i siedziba Oddziału ZPKWM

Lokalizacja. Kraków
Autorzy. Anna Owsiany, Kinga Bizon, Agnieszka Rutecka
Powierzchnia użytkowa. 2344 m2
Powierzchnia terenu opracowania: 24731 m2
Rok. 2022

Projekt Jurajskiego Centrum Edukacji Przyrodniczej odzwierciedla unikalne położenie inwestycji – na styku tkanki miejskiej i dzikiej przyrody. Założenie zostało podzielone na dwie wyraźne strefy: północną, uporządkowaną urbanistycznie, oraz południową – o charakterze naturalnym, niemal nietkniętym przez człowieka.

Architektoniczna forma budynku została zaprojektowana tak, by stanowczo domykać plac wejściowy od strony południowej. Budynek jest dwukondygnacyjny – z wyraźnie wyższym parterem, który formuje niemal sześciometrową, reprezentacyjną elewację od strony placu. Wycofana bryła pierwszego piętra, ukryta za attyką, pozostaje niemal niewidoczna z poziomu wejścia, lecz od strony parku jest jedynym widocznym elementem budynku – jego pozostała część wtapia się w naturalnie wznoszący się teren.

Prosta bryła, inspirowana jurajskim krajobrazem, została przecięta szczelinami– większe z nich prowadzą użytkowników do wnętrza z otaczających terenów zielonych, mniejsze zapewniają dostęp światła dziennego do wnętrz. Dzięki tym „pęknięciom”, tarasom i murkom budynek zyskuje lekkość, organicznie wpisując się w otoczenie.

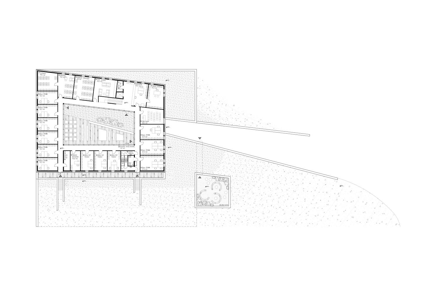
Program funkcjonalny budynku zaplanowano w sposób przejrzysty i intuicyjny. Parter przeznaczono na przestrzenie edukacyjne oraz ekspozycyjne, natomiast pierwsze piętro zajmują pomieszczenia biurowe, zorganizowane wokół wewnętrznego atrium, w którym przewidziano ogród dla pracowników.

Przewijanie do góry