Centrum opiekuńczo mieszkalne

Lokalizacja. Szczodre
Autorzy. Anna Owsiany, Kinga Bizon, Renata Wacławowicz, Julia Grądal
Powierzchnia użytkowa. 2481 m2
Rok. 2023
Praca konkursowa. PRACA WYRÓŻNIONA

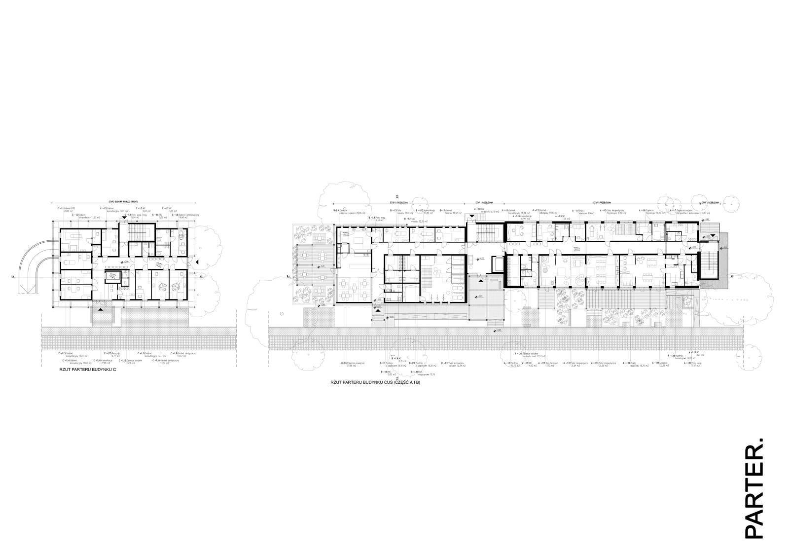
Przedmiotem projektu konkursowego była przebudowa i rozbudowa budynku o wcześniejszej funkcji edukacyjnej oraz budowa nowego obiektu, mające na celu stworzenie centrum opiekuńczo-mieszkalnego prowadzonego przez Centrum Usług Środowiskowych „Consociatio BONITUM” (CUS).

Projektowany ośrodek ma realizować usługi opiekuńcze, terapeutyczne, mieszkalne i medyczne. Celem projektu było uzyskanie przestrzeni stwarzającej użytkownikom optymalne warunki do funkcjonowania, rehabilitacji, samorozwoju oraz aktywizacji zawodowej poprzez możliwość pracy w kawiarnio-piekarni.

Dobudowywana do budynku istniejącego bryła została zaprojektowana jako rozrzeźbiony prostopadłościan. Centralnie zlokalizowane podcięcie wyznacza strefę wejściową oraz podkreśla rozdzielenie przestrzeni na publiczną oraz prywatną. Na piętrze wprowadzono wycięcia bryły, w których lokalizuje się werandy przynależne funkcji mieszkalnej. Składową formy nowej i starej części jest konstrukcja stalowa w kolorystyce zieleni. Ramy stalowe oprócz funkcji konstrukcyjnej w strefie wejściowej zapewniają możliwość montażu elementów zacieniających trasy i werandy oraz elementów terapeutycznych i relaksacyjnych np. huśtawek i „kokonów”.

Nowy budynek realizowany w ostatnim etapie inwestycji został zlokalizowany w południowej części działki. Jego zachowawcza bryła w formie prostopadłościanu została przełamana kratownicą, która tworzy balkony i zadaszenia. Układ okien wynika bezpośrednio z funkcji pomieszczeń, a w połączeniu z regularnym rytmem kratownicy wypełnionej panelami z siatki tworzy modernistyczną kompozycję pełnych i pustych przestrzeni.

Projekt kładzie nacisk na dostępność, wygodę użytkowania i logiczny podział stref. Przewidziano w nim m.in.: mieszkania usamodzielniające, wytchnieniowe i dla seniorów, sale terapeutyczne i fizjoterapeutyczne, gabinety lekarskie, sale masażu, przychodnię dla osób z niepełnosprawnościami, świetlicę oraz zaplecza sanitarne i techniczne.

Przewijanie do góry